1. Наша компанія працює більше 10 років.
2. Ми даємо правильні консультації.
3. Індивідуальний підхід. Кожному покупцеві ми приділяємо необхідну кількість уваги, від стадії вибору товару до його використання.
4. Ми продаємо тільки перевірені товари. Кожен товар проходить перевірку перед продажем і відправкою.
5. 80% товарів в наявності на наших складах.
6. Вигідні ціни. Знайшли товар дешевше - зробимо знижку.
7. Великий вибір способів оплати.
8. Доставка товару в будь-яку частину України.
9. Гарантія на товари.
10. З нами Ви економите час і гроші.

Твердотопливные котлы длительного горения Идмар. Опт. Розница. Бесплатная доставка +СКИДКА.
По вопросам сотрудничества обращаться по номеру 0953677383, 0675855528 Максим Константинович.
Твердотопливные котлы длительного горения Идмар GK-1 75 кВт- это одни из самых популярных котлов длительного горения на рынке Украины.
Главнымы преимуществами твердотопливных котлов Идмар GK-1 75 кВт является возможность бесперебойной работы до 48 часов на одной загрузке. Это достигается благодаря тому, что 10-15% времени работы котла топливо находится в состоянии тления.
Универсальность котлов заключается в возможности их работы на любом виде твердого топлива. Для котлов Идмар GK-1 75 кВт применимы различные виды твердого топлива — уголь, угольные отходы, угольные концентраты, брикеты, пеллеты, торф, дрова, древесные отходы.
Корпус и основные части твердотопливного котла изготовлены из высококачественной листовой стали большой толщины без использования пайки, в результате чего отсутствуют щели, что минимизирует тепловые потери, а так же повышает надежность и долговечность работы котла.
Твердотопливный котел длительного горения Идмар GK-1 75 кВт, комплектация:
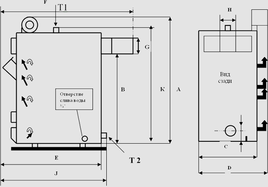
Внешние технические параметры твердотопливного котла Идмар GK-1 75 кВт

| № | Технические характеристики (параметры) | Единица измерения | Величина | Примечание |
| 1 | Мощность | кВт | 75 | |
| 2 | Ширина корпусакотла | см | 82 | |
| 3 | Высота корпуса котла | см | 195 | |
| 4 | Длина корпуса котла + боров | см | 105+20 | |
| 5 | Ширина котла в собраном виде | см | ||
| 6 | Длина котла + дымоход | см | ||
| 7 | Высота котла + патрубок подачи | см | ||
| 8 | Соединение (подача, обратка) | ДУ | 65 | Дн 76 патрубки |
| 9 | Вес котла | кг | 820 | |
| 10 | Расстояние от пола до загрузочной камеры | см | 85 | |
| 11 | Размер загрузочного окна | см | 35х25 | |
| 12 | Выступ загрузочного люка перед котлом | см | 45 | |
| 13 | Объем загрузочной камеры | м3 | 0,22 | 220 литров |
| 14 | Размер основного окна очистки | см | 40х17 | |
| 15 | Выступ крышки очистки (открытый) | см | 40 | по фронту |
| 16 | Диаметр дымохода (выход с котла) | мм | 200 | |
| 17 | Сечение дымохода | см2 | ||
| 18 | Высота дымовой трубы | м | 7 (min) | |
| 19 | Сила тяги | мм/Н2О | 2,0-3,5 | |
| 20 | Электрооборудование | Вольт/Ват | 220/180 | питание |
| 21 | Подсоединение группы безопасности | ДУ | 32 | внутренняя резьба |
| 22 | Слив воды с котла | ДУ | 32 | внутренняя резьба |
| 23 | Подрывной клапан на люке топки | ДУ | 50 | соединение подвижное |
| 24 | Температура воды (max) | град. цельсия | 90 | |
| 25 | Рабочее давление (max) | атм. | 3 | |
| 26 | Испытуемое давление | атм. | 6 |
Регионы доставки :
-Винницкая область (Бершадь, Жмеринка, Илинцы, Козятин, Оратов, Пищанка, Погребище, Тульчин, Хмельник, Ямпиль)
-Волынская область (Владимир-Волынский, Иваничи, Киверцы, Луцк, Маневичи, Рожище, Турийск)
-Днепропетровская область (Гвардейское, Днепродзержинск, Днепропетровск, Желтые Воды, Кривой Рог, Марганец, Никополь, Новомосковск, Павлоград, Первомайск, Славгород)
-Донецкая область (Володарское, Доброполье, Константиновка, Марьинка, Первомайское, Славянск, Тельманово, Шахтерск, Ясиноватая, Макеевка)
-Житомирская область (Бердичев, Городница, Коростень, Овруч, Попельня, Радомышль, Ружин, Чорняхов)
-Закарпатская область (Берегово, Великий Березный, Виноградов, Иршава, Межгорье, Мукачево, Рахов, Свалява, Перечин, Тячев, Ужгород, Хуст)
-Запорожская область (Акимовка, Бердянск, Запорожье, Каменка-Днепровская, Куйбышево, Мелитополь, Приазовское, Черниговка)
-Ивано-Франковская область (Богородчаны, Бурштын, Верховина, Галич, Делятин, Долина, Ивано-Франковск, Коломыя, Надворная, Яремча)
-Киевская область (Белая Церковь, Борисполь, Бровары, Вышгород, Киев, Переяслав-Хмельницкий, Сквира, Фастов, Яготин)
-Кировоградская область (Александрия, Александровка, Бобринец, Гайворон, Долинская, Знаменка, Ольшанка, Петрово, Светловодск, Устиновка)
-Луганская область (Красный Луч, Краснодон, Лисичанск, Рубежное, Северодонецк, Стаханов, Троицкое)
-Львовская область (Броды, Бусск, Дрогобыч, Жидачов, Каменка-Бугская, Перемышляны, Сколе, Сокаль, Стрый, Турка)
-Николаевская область (Березанка, Вознесенск, Доманевка, Николаев, Новый Буг, Первомайск, Снигиревка)
-Одесская область (Ананьев, Арцыз, Березовка, Измаил, Ильичевск, Котовск, Одесса, Рени, Теплодар)
-Полтавская область (Гадяч, Кобеляки, Кременчуг, Лубны, Миргород, Полтава, Семеновка, Чутово)
-Ровненская область (Дубно, Дубровица, Заречное, Здолбунов, Костополь, Ровно, Радивилов, Рокитное)
-Сумская область (Белополье, Глухов, Конотоп, Краснополье, Лебедин, Липовая Долина, Ромны, Ямполь)
-Тернопольская область (Бережаны , Борщев, Бучач, Гусятин, Залещики, Кременц, Почаев, Скала Подольская, Чортков, Тернополь, Шумск)
-Харьковская область (Богодухов, Волчанск, Изюм, Касноград, Купянск, Люботин, Первомайский)
-Херсонская область (Белозерка, Высокопольск, Гениченск, Горностаевка, Ивановка, Каланчак, Скадовск, Херсон)
-Хмельницкая область (Волочинск, Деражня, Каменец-Подольский, Славута, Полонное, Шепетовка, Ярмолинцы)
-Черкасская область (Ватутино, Жашков, Звенигородка, Золотоноша, Канев, Монастырище, Смела, Тальное, Умань, Чигирин)
-Черниговская область (Бахмач, Бобровица, Ичня, Козелец, Короп, Нежин, Репка, Чернигов, Щорс)
Черновецкая область (Вижница, Герца, Кельменцы, Кицмань, Новоднестровск, Новоселица, Старожинец, Черновцы, Хотин)