Шановні покупці! Якщо Ви знайшли цей товар дешевше, зв'яжіться з нами по телефону або напишіть на teploarsenal9@gmail.com і отримаєте знижку! Телефон для зв'язку 0953677383, 0675855528.
Чому варто купити у нас?
1. Наша компанія працює більше 10 років.
2. Ми даємо правильні консультації.
3. Індивідуальний підхід. Кожному покупцеві ми приділяємо необхідну кількість уваги, від стадії вибору товару до його використання.
4. Ми продаємо тільки перевірені товари. Кожен товар проходить перевірку перед продажем і відправкою.
5. 80% товарів в наявності на наших складах.
6. Вигідні ціни. Знайшли товар дешевше - зробимо знижку.
7. Великий вибір способів оплати.
8. Доставка товару в будь-яку частину України.
9. Гарантія на товари.
10. З нами Ви економите час і гроші.
Главная
» Поиск
» Погодозависимый контроллер для угольного котла Euroster UNI 1
Погодозависимый контроллер для угольного котла Euroster UNI 1
Производитель:Euroster Модель: Наличие: Есть в наличии
Погодозависимый контроллер для угольного котла Euroster UNI 1
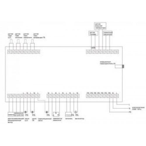
Командо-контроллер UNI 1 служит для полного управления твердотопливным котлом центрального отопления со шнековым питателем топлива, согласно погодной характеристике или с постоянными значениями. Он работает совместно с запальным устройством, насосами центрального отопления Ц.О. и горячей воды ГВ (зарядочным и циркуляционным), смесительным клапаном стабилизирующим температуру возвратного контура, комнатным регулятором, датчиком топлива и плавно управляет воздуходувкой, обеспечивая соответствующее количество воздуха во время процесса сгорания. Он оснащен интуитивным интерфейсом пользователя с сенсорной панелью управления, а также продвинутой сигнализацией тревожных и критических ситуаций. Большой диапазон установок, возможности управления и установки графиков работы Ц.О. и ГВ гарантируют оптимальное приспособление параметров работы котла центрального отопления.Технические характеристикиЭлектропитание: 230В / 50 ГцРабочая температура: 0 - 40°CТемпература хранения: 0-55°CМаксимальное потребление электротока: 14 ВтВыход тревоги: безнапряженныйВыход запального устройства: безнапряженныйВыходы питания для насосов: 230В / 50 ГцВыход питания для питателя: 230В /50 ГцВыход питания для воздуходувки: 230В /50 ГцМаксимальная нагрузка для выходов: 100 ВтВход RS232 неактивныйГабариты В/Ш/Г - 90/159,5/59 ммИнтерфейс пользователяПосле подключения контроллера к сети включается звуковая индикация, продолжающаяся ок. 0,5 сек. Затем контроллер переходит в такой режим работы, в котором находился до отключения напряжения. Пользователь сообщается с контроллером, пользуясь подсвечиваемой сенсорной панелью управления и сообщением на экране LCD, находящимся под сенсорной панелью, а также – дополнительной информацией от диода LED и звукового индикатора. Контроллер умело подсказывает пользователю очередные процессы управления печью, с помощью появляющихся на экране вопросов.Конфигурация контлоллераКонтроллер UNI 1 может управлять твердотопливной печью, обязательно снабженной воздуходувкой, датчиком температуры печи и насосом контура Ц.О. Возможно расширение печи и дополнительное оборудование ее следующими элементами:автоматическим шнековым питателем топлива с датчиком температуры питателя и датчиком отсутствия топлива в топливном резервуареавтоматическим запальным устройством топки контуром стабилизации температуры возвратной воды, использующим трехходовой смесительный клапан со встроенными наконечниками.Установка, источником энергии которой является твердотопливная печь, обязательно должна быть оборудована, по крайней мере, одним обогревательным контуром Ц.О.Дополнительно может быть расширена следующими элементами:контуром нагрева резервуара ГВ с насосом ГВ и датчиком резервуара ГВуправлением циркуляционным насосом ГВ комнатным регулятором подключаемым к входу для комнатного регулятора тревожной системой сигнализации GSM или другой, подключаемой к тревожному выходу.Кроме того контроллер дает возможность управлять температурой контура Ц.О., с помощью встроенного погодного регулятора с единичной кривой нагрева.Конфигурация UNI 1 осуществляется пользователем (монтажником) с целью приспособления контроллера индивидуально к данной установке, подключенной к печи.Это производится с помощью следующих установок меню СЕРВИС (SERWIS):Питатель STERЗапальное устройство STERСмеситель STERКонтур ГВЦиркуляция ГВКомнатный регулятор STERПогодный регулятор STER, включая или выключая отдельные алгоритмы, если они не будут использоваться.Монтажник имеет также возможность выбрать 1 из 4 наборов определенных установок для печи (модифицируемы установки от 0 до 25 меню СЕРВИС SERWIS). После введения установок их можно любым образом изменять
Отзывы (0)
Нет отзывов об этом товаре.
Написать отзыв
Ваше имя:
Ваш отзыв:Примечание: HTML разметка не поддерживается! Используйте обычный текст.